PHX - Phoenix Sky Harbor International Airport

AVIATION

PHX - Phoenix Sky Harbor International Airport

Commercial

Residential

Hospitality / Retail

Aviation

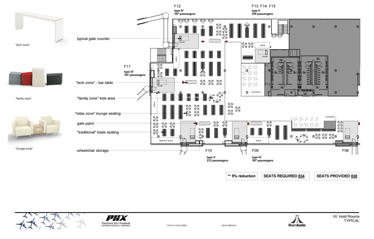
Terminal 3 & South Concourse


Project Architect responsible for client presentations, design-build team documentation and multidisciplinary coordination. Component One was completed in December 2016 and included a new consolidated security checkpoint, overhauled heating/venting/air conditioning systems and vertical circulation systems, common use airline ticket counters, and all new interior and exterior finishes. Components Two and Three included the addition of the Terminal Processor and the new 15-gate South Concourse complete with new concessions, holdrooms, restrooms and PBB.

Project Cost: $590 Million
Completed as Designer/Project Architect with Corgan