HNL – Honolulu International Airport

AVIATION

Commercial

Residential

Hospitality / Retail

Aviation

Hawaiian Airlines Lobbies 2 & 3 Modernization

On-Site design team leader and Project Manager responsible for all client and multidisciplinary team coordination. The project modernized and replaced all existing Ticketing STK kiosks within Terminal One at HNL. The new kiosks were strategically arranged to improve customer check-in times and experience.

As on-site design team leader and project manager, our main focus was ensuring seamless client interaction and coordination among the multidisciplinary team.

The project at hand was the largest of all Hawaii stations, and it involved a significant undertaking. We were tasked with creating new ticketing, ATO, BSO, and ramp operations for the airline’s inaugural Honolulu operations.

Southwest Airlines Tenant Improvement

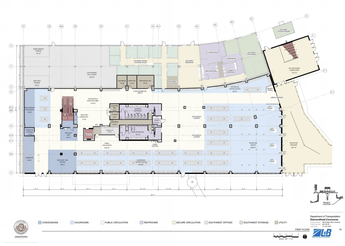
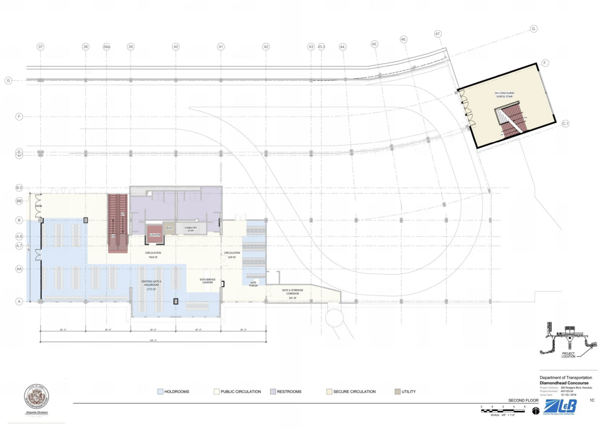
HDOT-A Diamondhead Concourse Gate 6 Modernization

As on-site design team leader and project manager, Chris managed all aspects of project delivery, client interaction, and multidisciplinary team coordination. The team’s goal was to ensure a successful outcome for the 34,000 SF2 four gate concourse expansion project. This expansion included new public restrooms, escalators, elevators, concessions, and seating for over 500 passengers.

Beyond the terminal expansion, under Hensel Phelps, we oversaw various airfield landside and airside improvements including hardstand restriping, egress stair, waste triturator, and protected walkway. Together, we successfully delivered the project while meeting all requirements and exceeding expectations.

Project Cost: $65 Million
Project Dates: March 2017 to March 2019

Project Cost: $3 Million
Project Dates: April 2020 to December 2020
Completed as Project Manager with Landrum & Brown

Project Cost: $7 Million
Project Dates: January 2018 to March 2019
Completed as Project Manager with Landrum & Brown